ZCRB系列是新型的燃氣管道工程的安全配套裝置,主要應用如下:
1、與可燃氣體泄漏監測儀器相連接。當儀器檢測到可燃氣體泄漏時,a自動快速關閉主供氣體閥門,切斷燃氣的供給,及時制止惡性事廠的發生。
2、與熱力設備的極限溫度(或壓力)安全控制器相連接。當設備內檢測點的溫度或壓力超過設定的極限數值時,自動快速關閉供氣閥門,停止燃料的供給。
3、與高層建筑的中央消防報警系統相連接。當大廈發生危情時,自動切斷大廈內的燃氣供應,防止燃氣爆炸的發生。
4、在城市或工廠的燃氣供應管網內設置ZCR燃氣緊急切斷閥,可在中央控制室內集中控制,遠距離遙控,緊急關閉事廠現場的管線供應。

| 產品結構:直動式/先導式 | 公稱壓力:1.6MPa | 工作壓差:0~0.05MPa |
| 工作介質:煤氣、天然氣、液化石油氣等無腐蝕性氖液體 | 關閉時間:<1秒 | |
| 介質溫度:-15℃~6℃ | 打開方式:手動復位戴電動復位 | 電源電壓:AC220VA、DC24V、DC12V |
| 安全等級:普通型Ex型 | 控制方式:不間斷輸出或脈沖式電磁力 | |
| DN | G | L | H |
| 25 | 1 | 110 | 130 |
| 32 | 1 1 /4 | 120 | 150 |
| 40 | 1 1/2 | 140 | 170 |
| 50 | 2 | 160 | 190 |
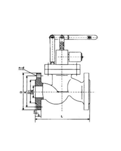
| DN | D1 | K | D | b | F | N-D | L | H |
| 25 | 65 | 85 | 115 | 16 | 3 | 4-?14 | 160 | 180 |
| 32 | 76 | 100 | 140 | 18 | 3 | 4-?18 | 180 | 195 |
| 40 | 84 | 110 | 150 | 18 | 3 | 4-?18 | 200 | 205 |
| 50 | 99 | 125 | 165 | 20 | 3 | 4-?18 | 230 | 220 |
| 65 | 118 | 145 | 185 | 20 | 3 | 4-?18 | 290 | 245 |
| 80 | 132 | 160 | 200 | 20 | 3 | 8-?18 | 310 | |
| 100 | 156 | 180 | 220 | 22 | 3 | 8-?18 | 350 | |
| 125 | 184 | 210 | 250 | 22 | 3 | 8-?18 | 400 | |
| 150 | 211 | 240 | 285 | 24 | 3 | 8-?22 | 480 | |
| 200 | 266 | 295 | 340 | 24 | 3 | 12-?22 | 600 | |
| 250 | 319 | 355 | 405 | 26 | 3 | 12-?26 | 730 | |
| 300 | 370 | 410 | 160 | 28 | 4 | 12-?26 | 850 | |
| 350 | 429 | 470 | 520 | 30 | 4 | 16-?26 | 980 |
浙公網安備 33032402001116號 網站地圖
13968958698
0577-67378705 / 67378706
浙江省溫州市甌北鎮東甌工業區和二園區大道926號